普通浮球復合式排氣閥主要由大量排氣和微量排氣兩部分組成,排氣面積大,排氣量也大。當液體進入閥體后,液面上升,在浮力的作用下浮球隨之上升,關閉主閥。圖1 所示排氣閥沒有微量排氣功能,一旦浮球被推起,只要管道內仍有壓力,即使再有氣體產生,浮球也不會落下,因此無法二次排除管道內聚集的氣體。圖2 所示排氣閥具有微量排氣功能,當閥體內聚集一定氣體后,浮球的重力大于液體浮力與微量排氣孔產生的壓差吸力時,浮球落下,微量排氣孔排氣。普通浮球復合式排氣閥的缺點是當管道中有大量的氣體需要迅速排放時,管道內和外界大氣達到一定壓差時,氣體流速加快,在閥瓣的上方就會產生一個低壓區,導致主閥迅速關閉,大量氣體無法快速排出,這時排氣閥失去排氣功能。

圖1 排氣閥

圖2 復合式排氣閥
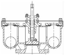
新型浮球復合式排氣閥(圖3)根據航空動力學原理改變了閥體內部的結構,使得高速流動的氣體在閥體內產生的低壓區下移至閥瓣下端,即使氣體流速達到音速時,閥瓣所受的合力依然向下,只有當液面上升,通過浮力推動浮球和閥瓣上升,主閥關閉。當管道內聚集的氣體進入排氣閥時,浮球下落,打開微量排氣閥,排出氣體,該閥反應靈敏,確保管網正常安全的運行。

圖3 新型浮球復合式排氣閥
地 址:上海市金山區興塔工業區
咨詢電話:021-5736 2601
手機號碼:138 1635 7694
電子郵箱:hanyuev@163.com
網 址:http://m.cy0731.cn