雙相不銹鋼復合式排氣閥產品概述
雙相鋼排氣閥是一種閥體、浮體、升降罩、閥蓋和排氣罩等主體部件采用2205、2507及S22053、S22253、S25073等雙相不銹鋼材料整體鑄造或焊制而成,適用于管道空管充水時快速排氣,管內產生負壓時又能快速進氣,在工作壓力下可排出管中集結的少量空氣且自動封水,具有大、小進排氣孔的閥門。該閥所使用的鋼種固溶組織中鐵素體相和奧氏體相大約各占一半,一般少量相也不低于30%,因此,它綜合了鐵素體和奧氏體不銹鋼的優點,具有超塑性、高韌性、高強度等特點,在抗腐蝕方面,特別是使用環境中大量含有氯化物、硫化物及二氧化碳等物質的條件下,其擁有優良的抗點蝕、縫隙腐蝕、應力腐蝕及疲勞腐蝕性能。本產品由于優良的耐腐蝕性和較高強度,特別適合水中氯離子含量較高及含硫化物的給水管道上使用,已廣泛應用于海水和海水談化及相關工業。
雙相不銹鋼復合式排氣閥部件材料
序號 | 部件名稱 | 材料名稱 | ||||
1 | 閥 體 | 2205 | 2507 | S22053 | S22253 | S25073 |
2 | 浮 體 | 2205 | 2507 | S22053 | S22253 | S25073 |
3 | 升 降 罩 | 2205 | 2507 | S22053 | S22253 | S25073 |
4 | 密 封 圈 | NBR/EPDM | NBR/EPDM | NBR/EPDM | NBR/EPDM | NBR/EPDM |
5 | 閥 蓋 | 2205 | 2507 | S22053 | S22253 | S25073 |
6 | 排 氣 罩 | 2205 | 2507 | S22053 | S22253 | S25073 |
7 | 螺 栓 | 304 | 316 | 304 | 304 | 316 |
8 | 螺 母 | 304 | 316 | 304 | 304 | 316 |
雙相不銹鋼復合式排氣閥性能規范
公稱壓力PN(MPa) | 0.6 | 1.0 | 1.6 | 2.5 | 2.0 |
殼體強度試驗壓力(MPa) | 0.9 | 1.5 | 2.4 | 3.75 | 3.0 |
高壓水密封試驗壓力(MPa) | 0.66 | 1.1 | 1.76 | 2.75 | 2.2 |
低壓水密封試驗壓力(MPa) | 0.02 | 0.02 | 0.02 | 0.02 | 0.02 |
設計制造 | CJ/T 217-2013 給水管道復合式高速進排氣閥 | ||||
法蘭標準 | GB/T 17241.6-2008、JB/T 79-2015、GB/T 9113-2010、ASME B16.5-2017等 | ||||
檢驗試驗 | CJ/T 217-2013 給水管道復合式高速進排氣閥 | ||||
適用介質 | 海水、鹽水或物理化學性質類似的其他液體 | ||||
工作溫度 | 0℃ ~ 65℃ | ||||
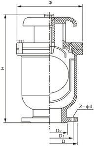
雙相不銹鋼復合式排氣閥外形尺寸
公稱壓力 Class | 公稱尺寸 NPS | 尺寸(mm) | |||||
Φ | H | D | D1 | D2 | Z-?d | ||
150(PN20) | ? | 195 | 320 | 100 | 69.9 | 43 | 4-16 |
1 | 195 | 320 | 110 | 79.4 | 51 | 4-16 | |
1 ? | 195 | 320 | 115 | 88.9 | 64 | 4-16 | |
1 ? | 195 | 320 | 125 | 98.4 | 73 | 4-16 | |
2 | 195 | 320 | 150 | 120.7 | 92 | 4-19 | |
3 | 242 | 375 | 190 | 152.4 | 127 | 4-19 | |
4 | 260 | 395 | 230 | 190.5 | 157 | 8-19 | |
6 | 345 | 500 | 280 | 241.3 | 216 | 8-22 | |
8 | 425 | 600 | 345 | 298.5 | 270 | 8-22 | |
10 | 465 | 680 | 405 | 362.0 | 324 | 12-25 | |
12 | 505 | 780 | 485 | 431.8 | 381 | 12-25 | |
14 | 605 | 860 | 535 | 476.3 | 413 | 12-29 | |
16 | 660 | 940 | 595 | 539.8 | 470 | 16-29 | |
表中只列出了部分ASME B16.5標準Class150法蘭連接外形尺寸。如需其他規格尺寸,請咨詢汗越閥門! | |||||||
雙相不銹鋼復合式排氣閥結構圖

如果你需訂購我廠排氣閥產品,咨詢時煩請告知公稱壓力、公稱尺寸、閥體和閥內件材料、法蘭標準及法蘭密封面形式等,本產品安裝在地下閥井中時,其閥門進口的檢修閥,宜采用可在地面上操作的結構型式,在寒冷地區,應根據當地氣溫,按不同標準和當地習慣做好防凍工作。
網站首頁