渦輪不銹鋼球閥產品概述
渦輪不銹鋼球閥是一種以蝸輪為驅動裝置,適用于輸送工作溫度在-30℃~200℃之間的腐蝕性介質的浮動球或固定球球閥,其閥體、閥桿、球體或金屬閥座等主要零部件可根據不同工況采用CF8、CF3、CF8M、CF3M等鑄件或304、304L、316、316L等鍛件及棒材加工而成,其中304系列不銹鋼耐大氣性優良,能耐硝酸和其他氧化性介質,也能耐堿、水、鹽等的腐蝕,但不耐硫酸、 鹽酸等非氧化性酸,也不耐不干燥的氯化氫、氧化性的氯化物和草酸、乳酸等,而在304的基礎上增含2%~3%鉬的316系列鋼,它的耐蝕性能比304更為優越,它在非氧化性酸和氯化物中的耐蝕性能比鉻鎳不銹鋼好,抗孔蝕性也好。本產品開啟或關閉時只需轉動手輪數圈,使球體旋轉90度即可達到全開或全關的狀態,具有開關時間短、啟閉省力的特點。
渦輪不銹鋼球閥部件材料
| 序號 | 部件名稱 | 材料名稱 | |||||
| 1 | 閥 體 | CF8 | CF3 | CF8M | CF3M | CF8C | 904L |
| 2 | 左 閥 體 | CF8 | CF3 | CF8M | CF3M | CF8C | 904L |
| 3 | 閥 座 | R-PTFE、PTFE、TEFLON、NYLON、PPL、PEEK、DEVLON、SS+HF | |||||
| 4 | 球 體 | 304 | 304L | 316 | 316L | 321 | 904L |
| 5 | 閥 桿 | 304 | 304L | 316 | 316L | 321 | 904L |
| 6 | 填 料 | GRAPHITE、R-PTFE、PTFE、TEFLON、PCTFE | |||||
| 7 | 填料壓蓋 | CF8 | CF3 | CF8M | CF3M | CF8C | 904L |
| 8 | 蝸 輪 | 組合件 | 組合件 | 組合件 | 組合件 | 組合件 | 組合件 |
渦輪不銹鋼球閥技術規范
| 公稱壓力PN(MPa) | 1.6 | 2.5 | 4.0 | 6.4 | 2.0 | 5.0 |
| 殼體試驗壓力(MPa) | 2.4 | 3.75 | 6.0 | 9.6 | 3.0 | 7.5 |
| 高壓密封試驗壓力(MPa) | 1.76 | 2.75 | 4.4 | 7.04 | 2.2 | 5.5 |
| 低壓密封試驗壓力(MPa) | 0.6 | 0.6 | 0.6 | 0.6 | 0.6 | 0.6 |
| 設計制造 | GB/T 12237、GB/T 21385、ASME B16.34、API 608、API 6D | |||||
| 結構長度 | GB/T 12221、ASME B16.10、API 6D | |||||
| 法蘭標準 | JB/T 79、GB/T 9113、HG/T 20592、HG/T 20615、SH/T 3406、ASME B16.5等 | |||||
| 檢驗試驗 | GB/T 26480、JB/T 9092、API 598、API 6D | |||||
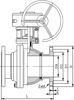
渦輪不銹鋼球閥主要尺寸
| 公稱壓力 PN | 公稱通徑 DN | 外形及連接尺寸/mm | |||||
| L | D | D1 | D2 | b-f | Z-?d | ||
| 16 | 15 | 130 | 95 | 65 | 45 | 16-2 | 4-14 |
| 20 | 140 | 105 | 75 | 58 | 18-2 | 4-14 | |
| 25 | 150 | 115 | 85 | 68 | 18-2 | 4-14 | |
| 32 | 165 | 140 | 100 | 78 | 18-2 | 4-18 | |
| 40 | 180 | 150 | 110 | 88 | 18-2 | 4-18 | |
| 50 | 200 | 165 | 125 | 102 | 18-2 | 4-18 | |
| 65 | 220 | 185 | 145 | 122 | 18-2 | 8-18 | |
| 80 | 250 | 200 | 160 | 138 | 20-2 | 8-18 | |
| 100 | 280 | 220 | 180 | 158 | 20-2 | 8-18 | |
| 125 | 320 | 250 | 210 | 188 | 22-2 | 8-18 | |
| 150 | 360 | 285 | 240 | 212 | 22-2 | 8-22 | |
| 200 | 400 | 340 | 295 | 268 | 24-2 | 12-22 | |
| 250 | 450 | 405 | 355 | 320 | 26-2 | 12-26 | |
| 表中為HG/T 20592-2009標準PN16法蘭連接浮動球球閥尺寸,如需其他規格參數,請咨詢汗越閥門技術部! | |||||||
渦輪不銹鋼球閥結構圖

如果你需訂購我廠不銹鋼球閥產品,咨詢時煩請說明規格型號,如無法提供,請注明閥門安裝的位置和要求功能,公稱尺寸、壓力等級、使用介質及組分、工作溫度及端部連接形式等。
網站首頁