電動保溫球閥產品概述
電動保溫球閥由一個使用電能作為動力的執行機構和保溫夾套球閥組成,電裝通電后電動機經減速器帶動輸出軸轉動,從而驅動閥桿帶動球體旋轉,實現閥門的開啟或關閉動作,以達到對管內重油、膠類等易凝固物料的流動或切斷,其按密封型式分為金屬和非金屬密封兩種,其中硬密封的可以根據工況需要對閥門的開度進行適度調節,改變介質流通的截面積,以滿足工藝對流速要求。該閥閥體外壁焊裝有一層流通保溫加熱流體的夾套,即使外界溫度降到了介質凝固點以下,它仍能靈活開關,保持閥門通道流路順暢,并可以有效防止閥內流體凝固或結晶。本產品電動執行機構可根據不同的工作場合選用戶外型、隔爆型、整體型及調節型等,可實現遠控、集控和自控。
電動保溫球閥部件材料
| 序號 | 部件名稱 | 材料名稱 | ||||
| 1 | 閥 體 | WCB | CF8 | CF3 | CF8M | CF3M |
| 2 | 保溫夾套 | Q235B | 304 | 304 | 304 | 304 |
| 3 | 端 蓋 | WCB | CF8 | CF3 | CF8M | CF3M |
| 4 | 閥 座 | R-PTFE、PTFE、TEFLON、NYLON、PPL、PEEK、DEVLON、SS+HF | ||||
| 5 | 球 體 | 2Cr13 | 304 | 304L | 316 | 316L |
| 6 | 閥 桿 | 2Cr13 | 304 | 304L | 316 | 316L |
| 7 | 填料壓蓋 | WCB | CF8 | CF3 | CF8M | CF3M |
| 8 | 填 料 | GRAPHITE、R-PTFE、PTFE、TEFLON、PCTFE | ||||
| 9 | 彈 簧 | 17-7PH | 17-7PH | 17-7PH | 17-7PH | 17-7PH |
| 10 | 螺 栓 | 35CrMoA | 304 | 304 | 316 | 316 |
| 11 | 螺 母 | 35CrMoA | 304 | 304 | 316 | 316 |
電動保溫球閥技術參數
| 公稱壓力PN(MPa) | 1.0 | 1.6 | 2.5 | 4.0 | 2.0 |
| 殼體試驗壓力(MPa) | 1.5 | 2.4 | 3.75 | 6.0 | 3.0 |
| 高壓液體密封試驗壓力(MPa) | 1.1 | 1.76 | 2.75 | 4.4 | 2.2 |
| 低壓氣體密封試驗壓力(MPa) | 0.6 | 0.6 | 0.6 | 0.6 | 0.6 |
| 設計制造 | JB/T 13458、GB/T 12237、GB/T 21385、API 608、ASME B16.34 | ||||
| 結構長度 | JB/T 13458、GB/T 12221、ASME B16.10 | ||||
| 法蘭尺寸 | JB/T 79、GB/T 9113、HG/T 20592、HG/T 20615、SH/T 3406、ASME B16.5等 | ||||
| 檢驗試驗 | GB/T 13927、GB/T 26480、JB/T 9092、API 598 | ||||
| 電源電壓 | 單相220V、三相380V、遠程DC24V (50Hz) | ||||
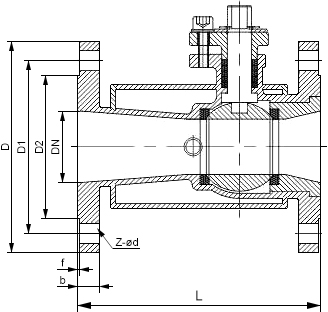
電動保溫球閥主要尺寸
| 公稱壓力 PN | 公稱通徑 DN | 外形及連接尺寸/mm | |||||
| L | D | D1 | D2 | b-f | Z-?d | ||
| 16 | 15 | 140 | 95 | 65 | 45 | 16-2 | 4-14 |
| 20 | 140 | 105 | 75 | 58 | 18-2 | 4-14 | |
| 25 | 160 | 115 | 85 | 68 | 18-2 | 4-14 | |
| 32 | 165 | 140 | 100 | 78 | 18-2 | 4-18 | |
| 40 | 180 | 150 | 110 | 88 | 18-2 | 4-18 | |
| 50 | 200 | 165 | 125 | 102 | 18-2 | 4-18 | |
| 65 | 220 | 185 | 145 | 122 | 18-2 | 8-18 | |
| 80 | 250 | 200 | 160 | 138 | 20-2 | 8-18 | |
| 100 | 280 | 220 | 180 | 158 | 20-2 | 8-18 | |
| 125 | 320 | 250 | 210 | 188 | 22-2 | 8-18 | |
| 150 | 360 | 285 | 240 | 212 | 22-2 | 8-22 | |
| 200 | 400 | 340 | 295 | 268 | 24-2 | 12-22 | |
| 表中未列出的其他規格尺寸,請咨詢汗越閥門技術部! | |||||||
電動保溫球閥結構圖

如果你需訂購我廠保溫球閥產品,咨詢時煩請注明規格型號,如無法提供,請說明公稱尺寸、公稱壓力、閥體材質、內件材料、介質溫度、法蘭標準及電裝類型等。
網站首頁